Description
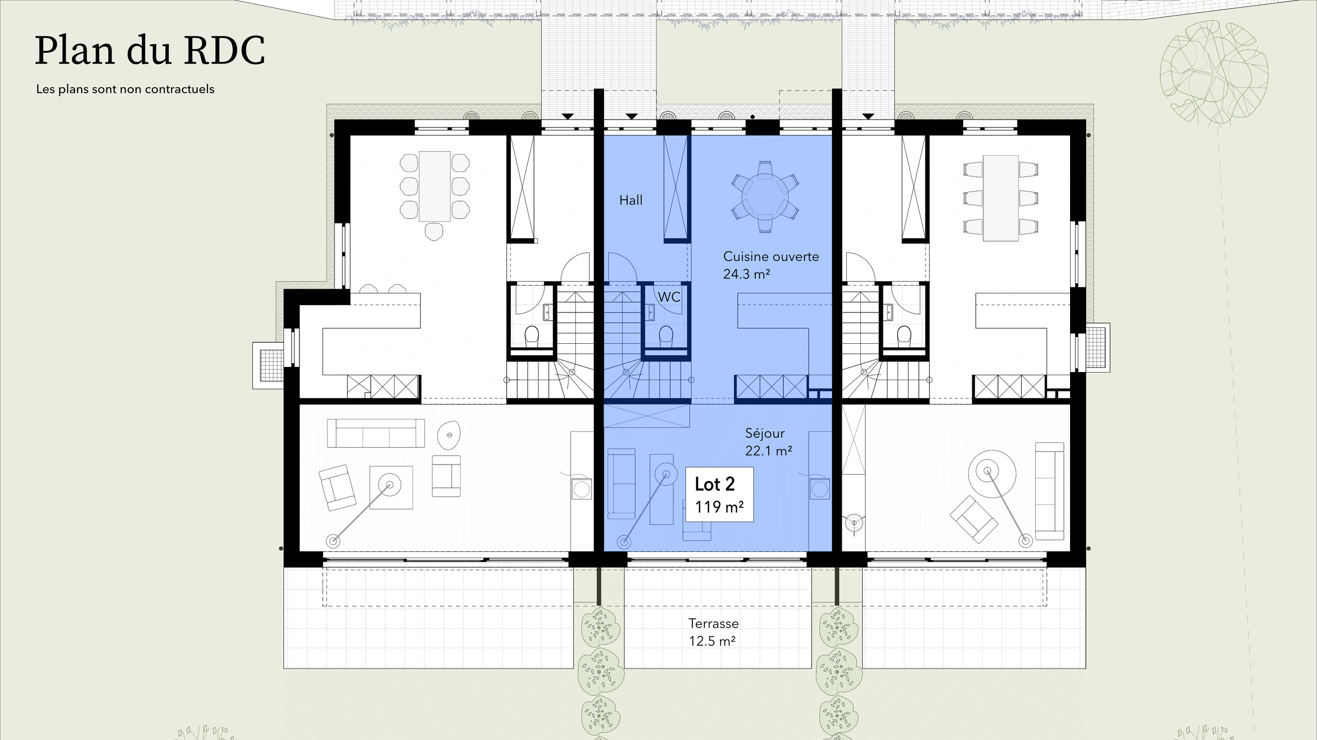
Cette jolie villa contiguë en ossature bois de 5 pièces et 119 m² habitables se trouve sur une parcelle de 131 m².
La villa dispose également d'une terrasse de 12,5 m², idéale pour profiter des beaux jours.
Parfaitement adaptée à une vie familiale, elle combine confort et praticité. Ce bien est idéalement situé, offrant un cadre de vie agréable.
À 10 min de l'autoroute et à 15 min de Fribourg.
Confort
Environnement calme
Construction en ossature bois
Dégagement sur la campagne
Vue sur les Préalpes fribourgeoises
Une belle terrasse de 12,5 m2 sans vis-à-vis
Grande baie vitrée
Spacieux et lumineux
Chauffage au sol par pompe à chaleur
Sols, sanitaires et cuisine : choix au gré du preneur
Une place de parc couverte à CHF 15'000.- en sus
Une place de parc non-couverte à CHF 10'000.- en sus
Disponibilité : Printemps 2027
Accès
À 10 min de l'autoroute
À 15 min de Fribourg
À 20 min de Bulle
À 35 min de Vevey
Transports publics
À 10 min à pied du bus
Rez-de-chaussée
Un hall d'entrée avec armoire encastrée et WC visiteurs, une grande cuisine séparée avec salle à manger, un joli séjour avec accès à la terrasse et au jardin.
1er niveau
Une suite parentale avec douche, deux jolies chambres et une salle de bains.
Sous-sol
Cave et buanderie.
Aménagements extérieurs
Une terrasse orientée sud-est de 12,5 m2 et un jardin. Deux places de parc extérieures, dont une sous-couvert.
Remarques
Visitez la page du projet pour découvrez les 14 autres maisons à vendre !
Commodités
Environnement
- Village
- Quartier de villas
- Verdoyant
- Montagnes
- Restaurant(s)
- Arrêt de bus
- Centre sportif
- Station de ski
Extérieur
- Terrasse(s)
- Jardin
- Place(s) de parc couverte(s)
Intérieur
- Cuisine ouverte
- WC visiteurs
- Cave
- Armoires encastrées
- Triple vitrage
- Lumineux
Equipement
- Cuisine agencée
- Baignoire
- Douche
Sol
- A choix
Exposition
- Sud
- Est
Ensoleillement
- Favorable
Vue
- Belle vue
- Sans vis-à-vis
- Forêt
- Montagnes
















