×
Photo 1
Photo 2
Plan 1
Plan 2
Plan 3
Photo 3
Plan de situation
Photo 4
Photo 5
Photo 6
Photo 7
Photo 8
Photo 9
Photo 10
Photo 11
Photo 12

Superbe Villa écologique !

Rte d'Essert, entre le no 53 et 61, Essert FR

CHF 870'000.-
Nous contacter
Dossier PDF
119 m²
174 m²
5
2
CHF 870'000.-

Description

Cette jolie villa contiguë en ossature bois de 5 pièces et 119 m² habitables est située sur une parcelle de 174 m².

Elle dispose d’une terrasse de 12,5 m², idéale pour profiter des beaux jours.

Le jardin complète cet ensemble, offrant un espace extérieur agréable.

Ce bien combine espace, confort et un emplacement idéal pour vivre au calme ! 

À seulement 10 min de l'autoroute et 15 min de Fribourg

Confort

Environnement calme

Construction en ossature bois
Dégagement sur la campagne
Vue sur les Préalpes fribourgeoises

Une belle terrasse de 12,5 m2 sans vis-à-vis
Grande baie vitrée 

Spacieux et lumineux
Chauffage au sol par pompe à chaleur
Sols, sanitaires et cuisine : choix au gré du preneur

Une place de parc couverte à CHF 15'000.-  en sus
Une place de parc non-couverte à CHF 10'000.- en sus 

Disponibilité :  Printemps 2027 

Accès

À 10 min de l'autoroute
À 15 min de Fribourg
À 20 min de Bulle
À 35 min de Vevey

Transports publics
À 10 min à pied du bus

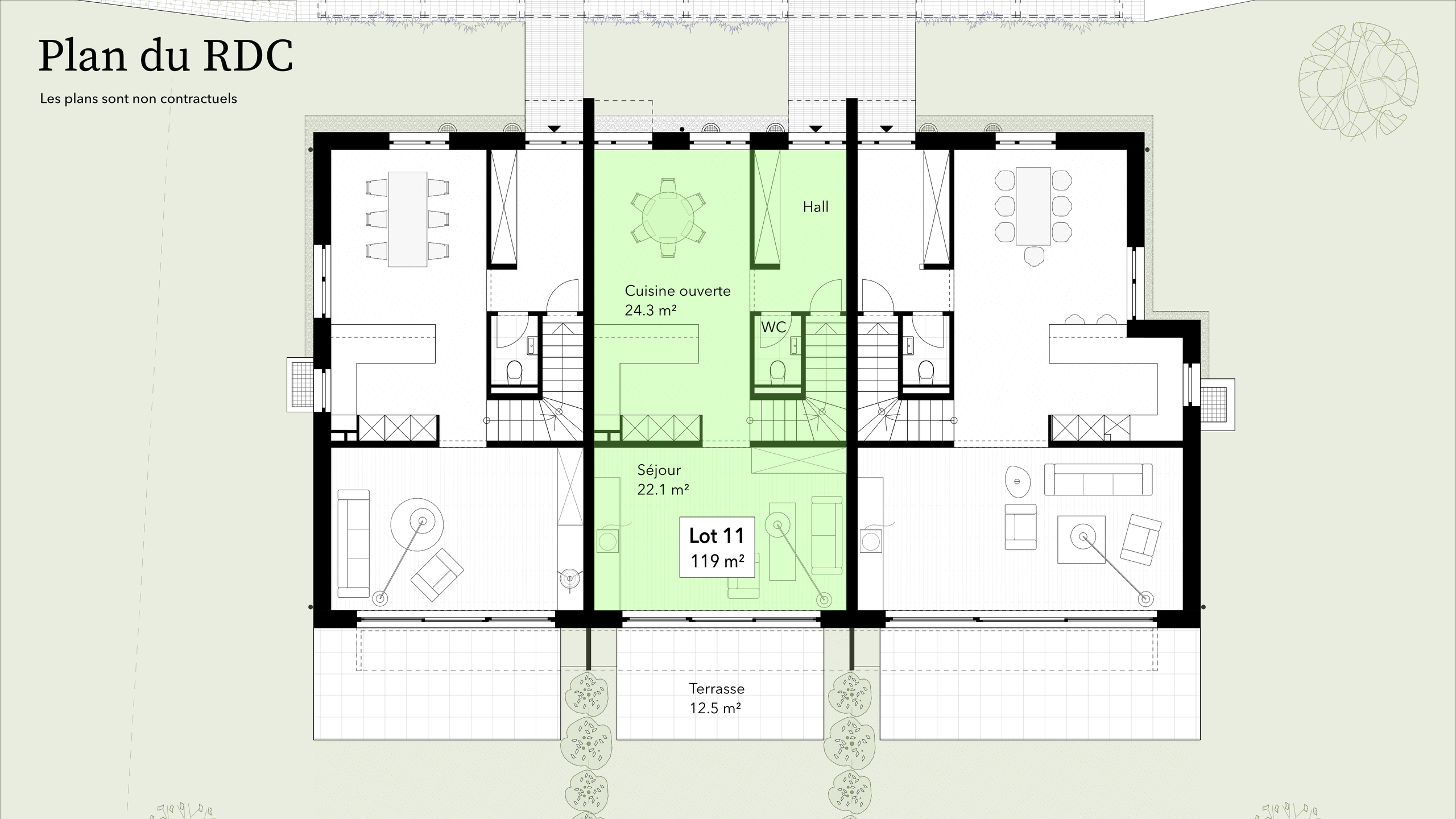
Rez-de-chaussée

Un hall d'entrée avec armoire encastrée et WC visiteurs, une grande cuisine séparée avec salle à manger, un joli séjour avec accès à la terrasse et au jardin.

1er niveau

Une suite parentale avec douche, deux jolies chambres et une salle de bains. 

Sous-sol

Cave et buanderie.

Aménagements extérieurs

Une terrasse orientée sud-est de 12,5 m2 et un jardin. Deux places de parc extérieures, dont une sous-couvert.

Remarques

Visitez la page du projet pour en savoir plus sur sa construction !

Commodités

Environnement
  • Village
  • Quartier de villas
  • Verdoyant
  • Montagnes
  • Restaurant(s)
  • Arrêt de bus
  • Centre sportif
  • Station de ski
Extérieur
  • Terrasse(s)
  • Jardin
  • Place(s) de parc couverte(s)
Intérieur
  • Cuisine ouverte
  • WC visiteurs
  • Cave
  • Armoires encastrées
  • Triple vitrage
  • Lumineux
Equipement
  • Cuisine agencée
  • Baignoire
  • Douche
Sol
  • A choix
Exposition
  • Sud
  • Est
Ensoleillement
  • Favorable
Vue
  • Belle vue
  • Sans vis-à-vis
  • Forêt
  • Montagnes

Formulaire de contact

facultatif