Description
Charmant studio de 42 m², situé au rez inférieur d’un bel immeuble au cœur de la campagne paisible de Siviriez.
Idéal pour une personne seule, un investissement avec un bon rendement ou une activité indépendante, ce studio offre une belle opportunité à saisir
À seulement 15 minutes de l'autoroute, il offre à la fois calme et accessibilité.
Au plaisir de vous rencontrer pour une visite !
- Permis de construire délivré !
- Projet financé par la BCF avec une hypothèque avantageuse
Confort
(Lot 3)
Calme et verdoyant
Sans vis-à-vis
Chauffage pompe à chaleur - sol
Technologie géocooling pour rafraichir naturellement l'habitat en été
Sol, cuisine et sanitaire(s) : choix au gré du preneur
Parking public à proximité
Disponibilité : Été 2027.
Accès
À 5 min de Romont et de l'usine Nespresso
À 15 min de l'autoroute
À 22 min de Bulle
À 30 min de Vevey et du lac
Transports publics
À 2 min à pieds du bus
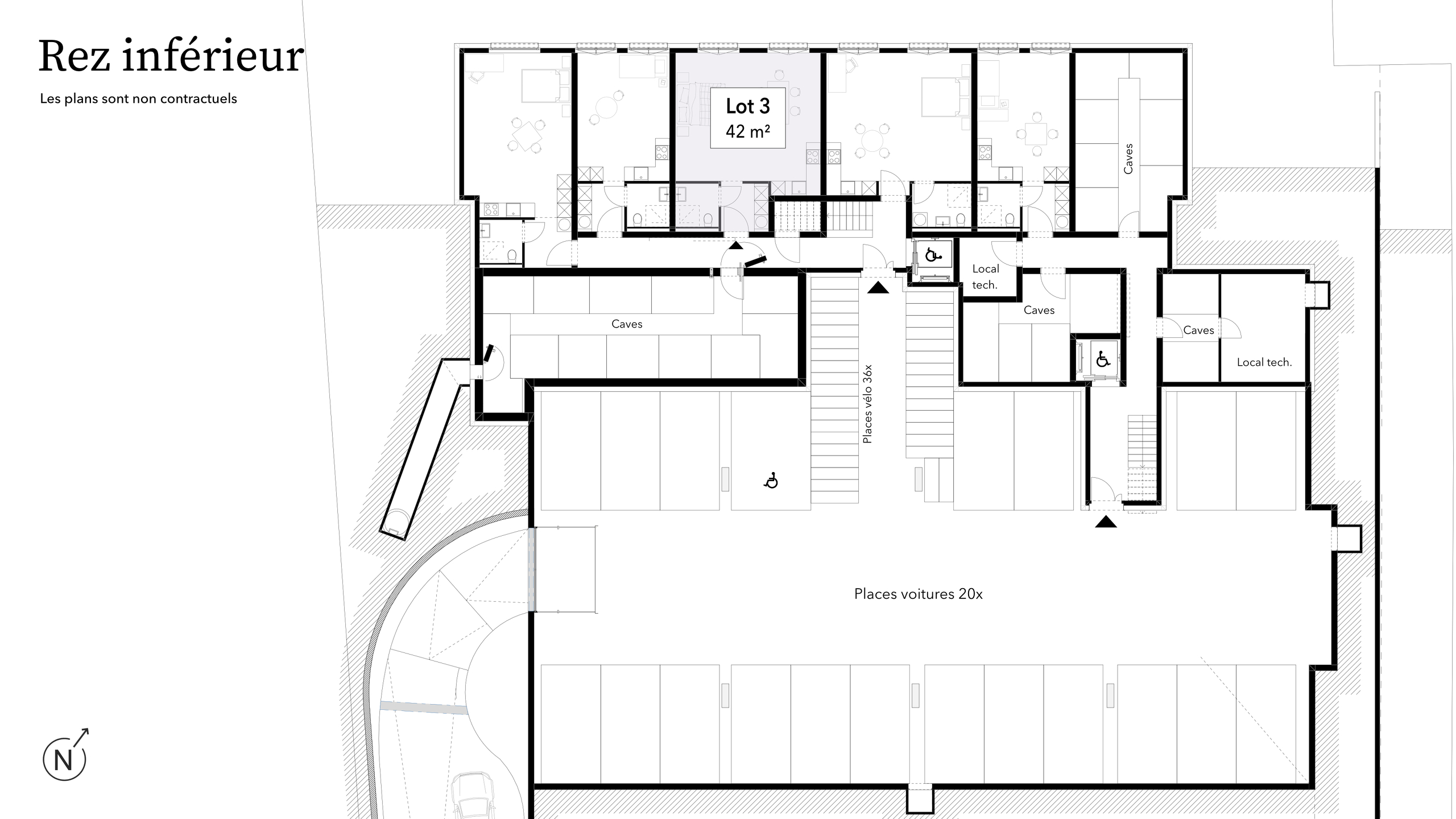
Rez inférieur
Un petit hall d'entrée, une pièce à vivre de 38,5 m2 et une salle de bains avec douche, lavabo et WC.
Caves, places vélo et locaux techniques.
Aménagements extérieurs
Commun : places visiteurs et parking à vélo.
Situation
En pleine campagne, Siviriez est un cocon de tranquillité entouré par les champs à quelques minutes des grands axes routiers.
Particularités
Le géocooling (ou refroidissement géothermique) est une technique écologique de régulation thermique qui utilise la température constante du sol pour rafraîchir un bâtiment.
Comment ça fonctionne ?
- L'air ou l'eau passe dans des conduits souterrains où la température est plus basse qu'en surface pendant l'été.
- Cette fraîcheur est ensuite diffusée dans le bâtiment, réduisant la dépendance aux systèmes de climatisation traditionnels.
Avantages du géocooling :
- Écologique : réduit les émissions de CO₂ en limitant l'usage d'énergies fossiles.
- Économique : diminue les coûts liés à la climatisation.
- Confortable : offre un rafraîchissement naturel et constant. Charmant studio de 38 m², situé au rez inférieur d’un bel immeuble au cœur de la campagne paisible de Siviriez.
Remarques
Une opportunité rare à ne pas manquer !
Profitez d'un financement avantageux avec la banque BCF et d'une hypothèque ultra-attractive, une occasion idéale pour devenir propriétaire dans des conditions exceptionnelles !
Que ce soit pour un investissement rentable ou pour votre résidence principale, ce bien vous offre un cadre de vie paisible, un confort moderne et une opportunité financière unique.
Ne laissez pas passer cette chance ! Contactez-nous dès maintenant pour en savoir plus.
Ce projet propose 5 studios et 20 appartements, à découvrir sur la page du projet de Siviriez !
Commodités
Environnement
- Village
- Commerces
- Arrêt de bus
- Centre sportif
Extérieur
- Parking public
Intérieur
- Ascenseur
- Cuisine ouverte
- Cave
- Local à vélos
- Triple vitrage
Sol
- A choix
Vue
- Dégagée












