Description
Vendu par Vincent Grognard, le 16.07.2024
Propriétaire : " Monsieur Grognard est un bon courtier, il n’ya pas eu de problème avec lui. " MK
Propriétaire : " Monsieur Grognard est un bon courtier, il n’ya pas eu de problème avec lui. " MK
Confort
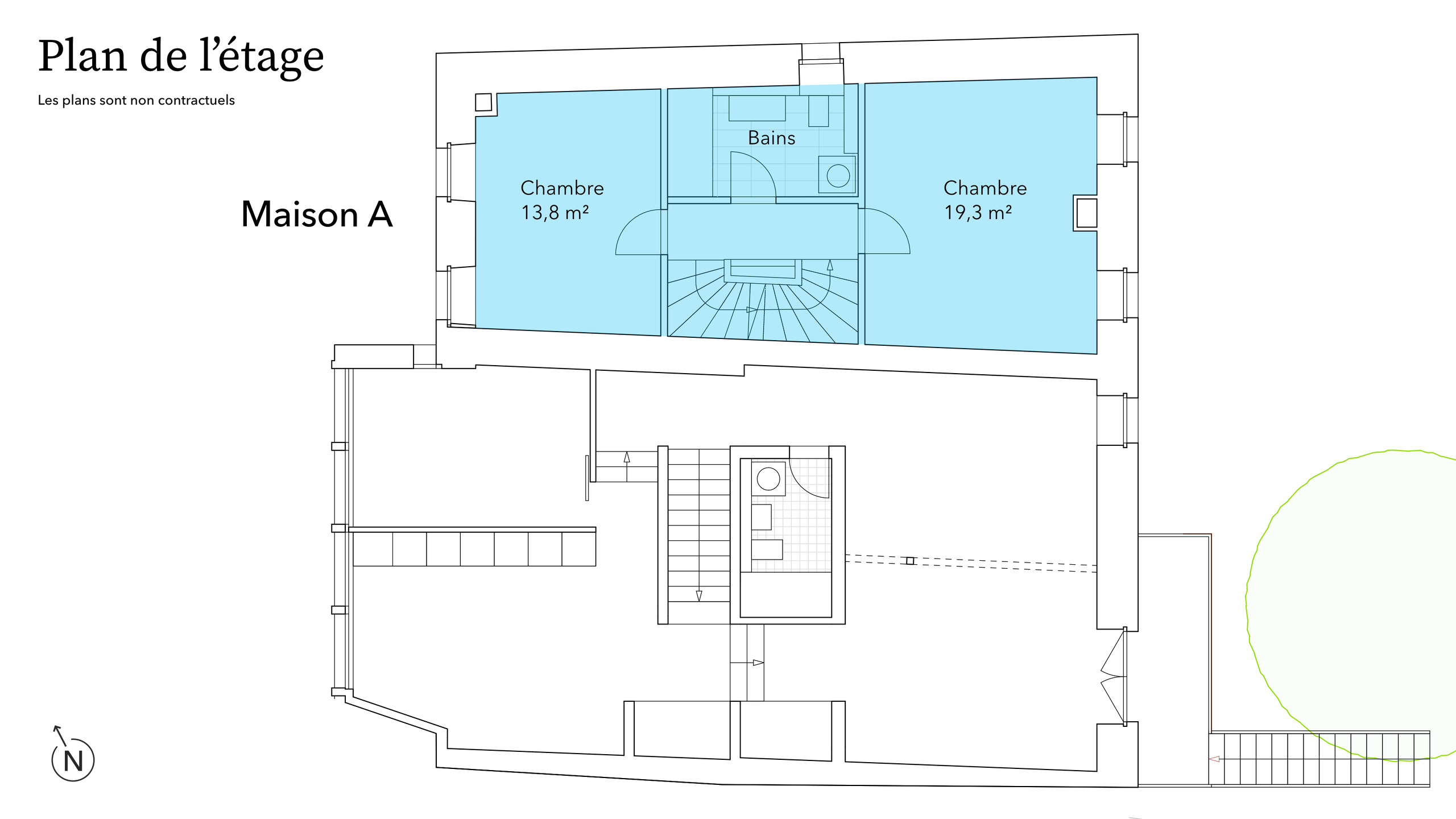
LOT A
Environnement calme
Verdoyant
Grand jardin arboré de 115 m2
20 m2 de terrasse inclus dans le jardin
Grands espaces
Beaux volumes
Cheminée
Pierre naturelle
Finitions au gré du preneur pour les salles d'eau, cuisine et sol.
Deux places de parc extérieures.
Disponibilité : été 2025.
Environnement calme
Verdoyant
Grand jardin arboré de 115 m2
20 m2 de terrasse inclus dans le jardin
Grands espaces
Beaux volumes
Cheminée
Pierre naturelle
Finitions au gré du preneur pour les salles d'eau, cuisine et sol.
Deux places de parc extérieures.
Disponibilité : été 2025.
Accès
À 1 min à pied de l'école
À 5 min à pied de la gare du LEB
À 5 min de l'autoroute
À 15 min du centre-ville de Lausanne
À 15 min du bord du lac (plage de Vidy)
À 5 min à pied de la gare du LEB
À 5 min de l'autoroute
À 15 min du centre-ville de Lausanne
À 15 min du bord du lac (plage de Vidy)
Rez-de-chaussée
Un petit hall d'entrée avec WC visiteurs, une grande pièce à vivre de 40 m2 avec cuisine ouverte, salle à manger, salon, cheminée et un accès à la terrasse.
1er niveau
Une salle de bains et 2 jolies chambres à coucher.
Combles
Une salle de douche et 2 chambres à coucher, dont une avec dressing.
Aménagements extérieurs
Terrasse dallée et jardin arboré.
Remarques
Visitez la page du projet pour en savoir plus sur sa construction !
Commodités
Environnement
- Village
- Parc
- Commerces
- Restaurant(s)
- Arrêt de tram
- Aire de jeux
- Crèche/garderie
- Ecole maternelle
- Ecole primaire
- Ecole secondaire
- Ecole secondaire II
Extérieur
- Terrasse(s)
- Jardin
- Silencieux/tranquille
- Verdure
- Parking public
Sol
- A choix










